EPCB Boiler is a professional boiler manufacturer in China. Focus on industrial boiler production and sales for 68 years. Our main products are coal-fired boilers, oil gas boilers, biomass boilers, electric boilers, and power plant boilers.
As we all know, industrial oil/gas-fired boilers are more energy-saving and environmentally friendly than coal-fired boilers, so chimney blockage for gas-fired boilers is seldom happened in general. However, if the boiler is used for a long time, a variety of flue gas dust will also be accumulated in the chimney, so that the flue gas can not be re-discharged, thereby increasing fuel consumption, but also reducing the efficiency of the gas-fired boiler. Therefore, in order to avoid this phenomenon, the chimney needs to be cleaned regularly during the use of the boiler. The following is a simple method for chimney cleaning, which is summarized by EPCB based on many years of experience of customer service. This method is applicable to EPCB horizontal fire tube oil/gas-fired steam boilers and oil/gas-fired hot water boilers.
Firstly, the attachments on the inner wall of the chimney are shocked by knocking the chimney up and down with a tool such as a hammerhead.

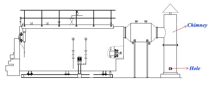
After the knock, a hole is made in the bottom of the chimney. Users can make a simple and open-able square hole, about 20 cm*20 cm in size.


Then, tap water is used to wash the chimney wall from the top of the chimney, and sewage flows out from the holes made.
The manufacturing method of the open-able hole:

As shown in the figure, a square plate is cut at the bottom of the chimney with a cutting machine, which is about 500px*500px in size, forming a square hole. Note: The opening should be as close to the ground as possible to facilitate drainage.
Two U-shaped troughs are welded on both sides of the cut hole so that after the chimney has been cleaned up, the previously cut plate can be inserted back into the U-shaped troughs.
The above is a simple method of cleaning the boiler chimney, which can be completed by only boiler operators. And users don’t need to find the professional cleaning team. It can save a lot of money for boiler use enterprises. Of course, boiler operators should pay attention to the flow of sewage in the process of cleaning chimneys, so as to avoid causing pollution to the surrounding environment.
Send You Inquiry
Give You Boiler Solution
Place The Order
Get Your Boiler